6

客房

1

1

浴室

/

淋浴室

375.74m²

表面

935 000

价格

GRANDE VILLA PROVENCALE AVEC PISCINE ET VUES PANORAMIQUES

06140 

旺斯

 法国

Dans un secteur résidentiel recherché au Sud de Vence, dans un environnement calme et verdoyant, devenez propriétaire de cette somptueuse villa provençale pleine de charme

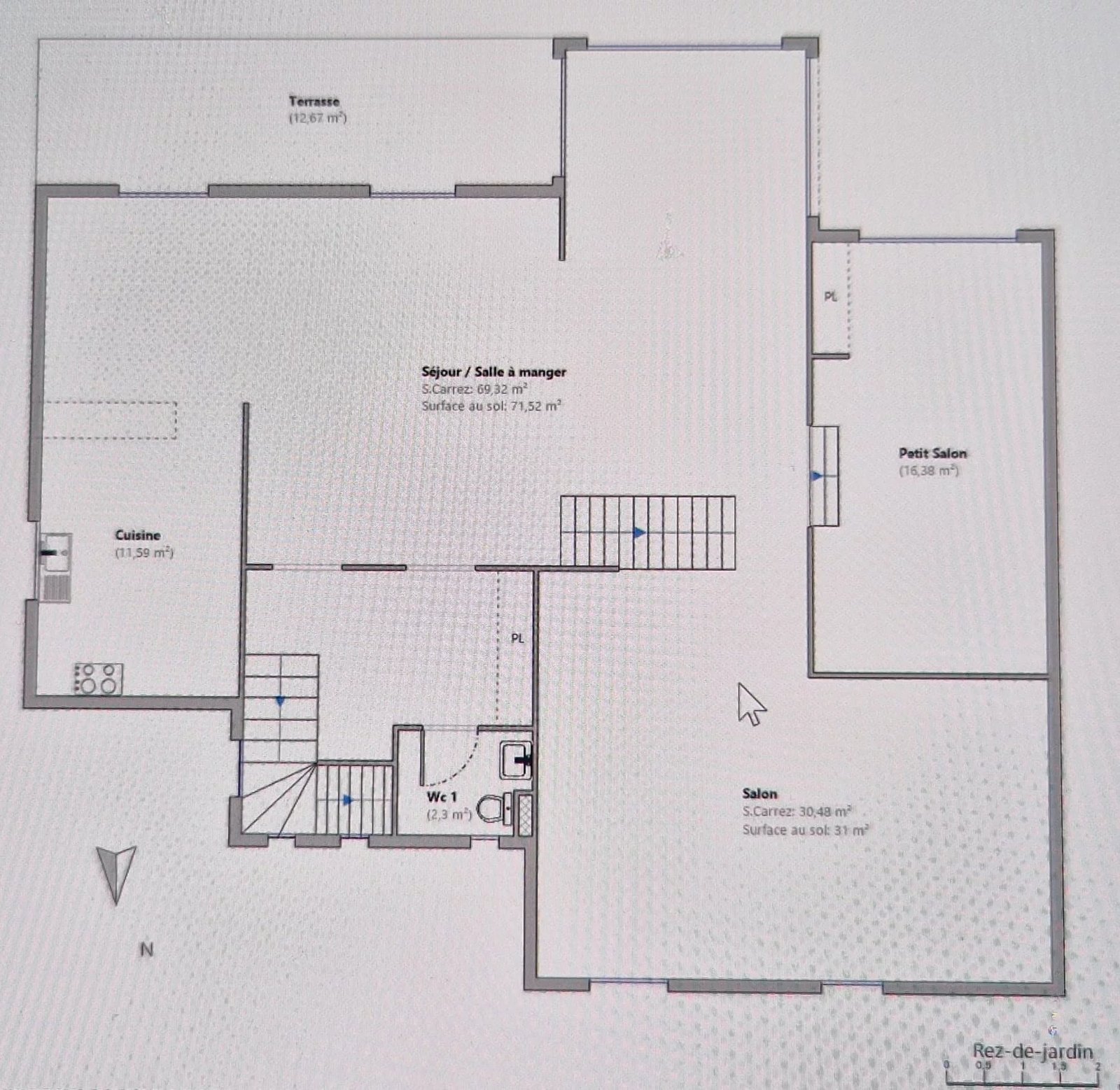
S’offre à vous près de 380 m² bâti, dans cadre de vie agréable, idéal pour une ou deux familles à la recherche d’espace et de tranquillité.

La maison se développe sur plusieurs niveaux et propose une belle organisation des volumes.

En rez-de-jardin, vous découvrirez une spacieuse pièce de vie avec cheminée, ouverte sur une cuisine équipée, le tout baigné de lumière grâce aux larges ouvertures donnant sur l’extérieur.
Une salle de jeux complète cet espace convivial.

À l’étage, vous découvrirez quatre belles chambres, un bureau ainsi que d’une mezzanine offrant de nombreuses possibilités d’aménagement selon vos besoins.

En rez-de-chaussée, un appartement indépendant de 2 pièces permet d’accueillir vos invités ou d’envisager un projet locatif.

Implantée sur un terrain paysagé de 3 000 m², la propriété bénéficie d’une vue dégagée sur la nature et les montagnes.

Les extérieurs proposent une piscine, un pool-house avec cuisine et studio, ainsi qu’un abri pour plusieurs voitures.

Exposée Sud et Est, la maison bénéficie d’une belle luminosité tout au long de la journée.

Vous pouvez prévoir quelques travaux de rafraîchissement pour moderniser la propriété et révéler tout le potentiel de cette grande maison de caractère aux espaces et volumes généreux, idéale pour un projet familial dans un environnement privilégié à quelques minutes du centre de Vence et à bonne distance pour profiter et rayonner sur la Côte d’Azur (aéroport à moins de 20 min).

Contactez moi pour une visite avant qu’elle ne soit plus disponible, merci.

Honoraires à charge vendeur.
Taxe foncière: 2896 €
Les informations sur les risques auxquels ce bien est exposé sont disponibles sur le site Géorisques : georisques. gouv.fr

物业详情

  • 房产类型 住宅
  • Surface 375.74 m²
  • 部件 7
  • 客房 6
  • 浴室 1
  • 淋浴室 1
  • Référence du bien 86890708

了解该物业

能源性能

  • 能源性能: D
  • Indice de performance énergétique: 213.1 kWh / m².an
  • 现任 ECD: D
  • 潜在 ECD: 46 千克 CO₂/m².an
213.1 kWh / m².an | Performance énergétique D
  • A
  • B
  • C
  • 213.1 kWh / m².an | Performance énergétique D
    D
  • E
  • F
  • G

预约参观

如果您想安排看房或获取更多信息,请随时通过电话或联系表格与负责该房产的顾问联系。

Grégory Trouiller

索取该物业信息

列表比较

比较
Grégory Trouiller
  • Grégory Trouiller