NICE HYPER CENTRE : Au cœur de Nice, à seulement quelques pas de la mer, se dévoile cet élégant hôtel particulier du début du XXᵉ siècle, reflétant avec charme et authenticité le caractère architectural distinctif de la Belle Époque.
Exploité aujourd’hui en hôtel, cette propriété de 650 m² au total représente une opportunité rare pour les investisseurs à la recherche d’un actif de caractère sur la Côte d’Azur.
Son emplacement exceptionnel et privilégié permet de bénéficier d’une clientèle équilibrée, composée à la fois de voyageurs d’agrément et de clientèle d’affaires tout au long de l’année, garantissant une activité stable et régulière.
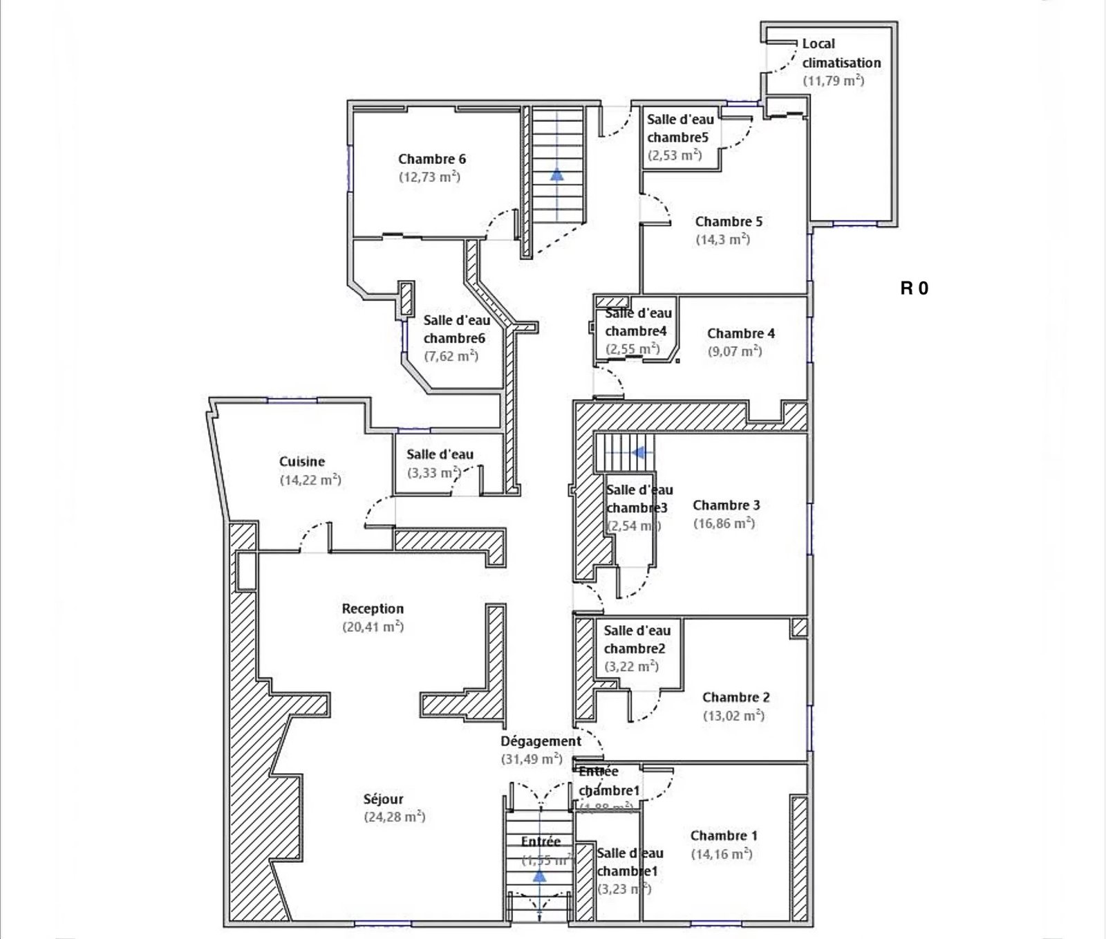
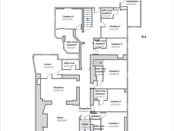
Dès l’entrée, la bâtisse impressionne par ses volumes généreux, notamment avec des hauteurs sous plafond atteignant jusqu’à 5 mètres au rez-de-chaussée, agrémentées de moulures et de cheminées d’époque.
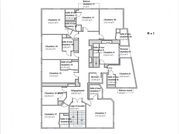
Répartie sur deux niveaux, elle accueille actuellement 16 chambres avec salles d’eau privatives, ainsi qu’un espace réception convivial et un agréable salon de petit-déjeuner pour les hôtes.
Le dernier étage propose un appartement mansardé bénéficiant d’une terrasse privative de 71 m². Véritable atout du bien, cet espace offre un excellent potentiel pour la création d’un élégant rooftop, concept particulièrement recherché et susceptible de valoriser significativement l’attractivité et la valeur de la propriété.
Un sous-sol d’environ 127 m² est entièrement dédié aux espaces de service et aux installations techniques de l’hôtel, comprenant buanderie, réserves, cellier et équipements destinés au personnel et l’extérieur accueille deux terrasses venant compléter l’ensemble.
Le bâtiment présente également un potentiel technique d’extension avec la création d’un ascenseur, ouvrant la voie à de nouvelles possibilités de développement.
L’emplacement est particulièrement recherché, à proximité immédiate des commerces et des transports : à seulement 500 mètres de la mer, 500 mètres de la gare TGV et 400 mètres du tramway.
Une propriété de caractère, exploitée en activité hôtelière, rarement proposée sur le marché niçois.
Honoraires d’agence inclus à la charge du vendeur. Les informations sur les risques auxquels ce bien est exposé sont disponibles sur le site officiel Géorisques : georisques.gouv.fr.
Détails du biens
Si vous souhaitez organiser une visite ou obtenir plus d’informations, n’hésitez pas à contacter le consultant responsable de ce bien, par téléphone ou via le formulaire de contact.
Coldwell Banker est une agence immobilière spécialisé dans la vente de biens de luxe dans les Alpes-Maritimes et Monaco avec une agence à Nice et Antibes
© 2024 – Tous droits réservés. Coldwell Banker Standing Realty
Une Création Comptoir du Web
Coldwell Banker est une agence immobilière spécialisé dans la vente de biens de luxe dans les Alpes-Maritimes et Monaco avec une agence à Nice et Antibes
© 2024 – Tous droits réservés. Coldwell Banker Standing Realty
Une Création Comptoir du Web
Coldwell Banker est une agence immobilière spécialisé dans la vente de biens de luxe dans les Alpes-Maritimes et Monaco avec une agence à Nice et Antibes
© 2024 – Tous droits réservés. Coldwell Banker Standing Realty
Une Création Comptoir du Web
Compare listings
ComparerPlease enter your username or email address. You will receive a link to create a new password via email.
Pour offrir les meilleures expériences, nous utilisons des technologies telles que les cookies pour stocker et/ou accéder aux informations des appareils. Le fait de consentir à ces technologies nous permettra de traiter des données telles que le comportement de navigation ou les ID uniques sur ce site. Le fait de ne pas consentir ou de retirer son consentement peut avoir un effet négatif sur certaines caractéristiques et fonctions.